Amaya Boutique
Концепцията на сградата съчетава съвременна архитектурна визия, устойчиви материали и практични решения за ежедневен комфорт. Конструкцията е стоманобетонна, с плосък покрив и неносещи преградни и ограждащи зидове. Фасадното оформление включва топлоизолация от каменна вата, вентилируема фасада, алуминиеви композитни панели и облицовка от керамични тухли. Дограмата е алуминиева в цвят RAL 7016 с двукамерни стъклопакети, а терасите са със стъклени парапети, които допринасят за по-лек и модерен облик на сградата.
Жилищна сграда „Амая Бутик“
Сградата се състои от 1 вход с един полуподземен, два надземни и един подпокривни етажа, съобразени със специфичната денивелация на терена. Относителната кота ±0,00 е равна на абсолютна кота 142,90.
Входът на сградата е на кота ±0,00, което се явява първият надземен етаж.
Полуподземен етаж
Полуподземният етаж е на ниво -2,95 като се състои от 2 апарамент с входно преддверие, дневна с трапезария и кухня, 2 спални, една от които със самостоятелна баня-тоалетна, едно общо санитарно помещение и перално помещение. Към апараментите са предвидени по една приземна тераса с достъп до двора. Във вкопаната част на етажа остават избените помещения – 11 бр и едно общо помещение.
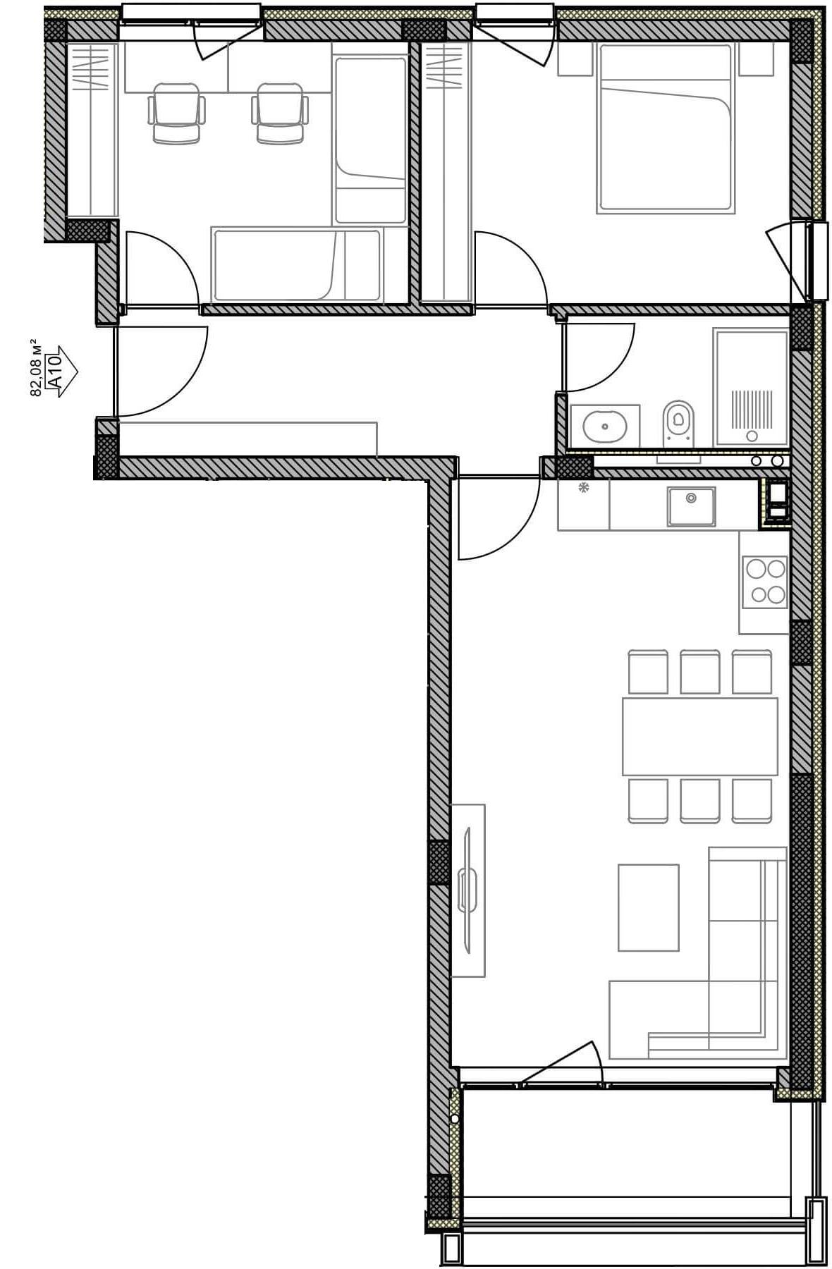
Надземни етажи
На двете надземни нива на кота 0,00 и +2,95 са организирани по 4 бр. апартаменти. Два от тях се състоят от входно преддверие, дневна с трапезария и кухня, 2 спални, баня-тоалетна и тераса. Другите два апартамента са организирани с входно преддверие, дневна с трапезария и кухня, една спалня, обща баня-тоалетна и тераса.
Подпокривен етаж
На третия надземен подпокривен етаж (кота +5,90) е организрани един апартамент, който се състои от входно преддверие, дневна с трапезария и кухня, 3 спални, една от които със самостоятелни гардероб и баня, обща баня-тоалетна за другите две спални, тоалетна и тераса.
Конструкция
Конструкцията на сградата е стоманобетонна смесена – безгредова в полетата и с рамкови греди по контура. Преградните и ограждащите зидове са неносещи. Покривът е плосък. Кота било е +8,85=151,75.
Дограма
Дограма: Алуминиева с цвят по RAL 7016 и двукамерни стъклопакети с прозрачно стъкло. Вратите към терасите се изпълняват с праг до 2см.
Довършителни работи
Довършителни работи: Външните преградни стени са от тухли 25см. За направата на фасадното оформление се предвижда топлоизолация от каменна вата 12см по стени и еркери и XPS-12см при покривите. При топлоизолацията на стените се предвиждат разделителни ивици от каменна вата, съгл. изискванията на НАРЕДБА № Iз–1971. Финишният материал е облицовка от керамични тухли на лепене с различни цветове според сигнатурите в чертежите; вентилируема фасада и алуминиеви композитни панели.
Вътрешните преградни стени между апартаментите са от керамични тухли 25см, а преградните стени в апартаментите се изпълняват от щендерна конструкция с двуслойна облицовка от гипсокартон. Стените в санитарните помещения са облицовани с фаянс, като е нанесена хидроизолация до ниво +1,20м. от готов под, а останалите помещения са боядисани с латекс. Таваните в сухите помещения са боядисани с латекс, а тези в мокрите са с окачен таван според сигнатурите в чертежите.
Парапети
Парапетите са стъклени с височина от готов под на терасата 105см. При прозорците, които са с подпрозоречен парапет по-нисък от 85см е предвидена долна неотваряема зона, защитена със стъклопакет със стъкло триплекс.
Местоположение и планировка
Имотът, в който се проектира сградата, е с площ 1761 кв.м., с неправилна форма и се обслужва от вътрешноквартална улица, разположена по северната граница на имота. Теренът е със силен наклон север-юг, като приблизителната денивелация е 4 м. Предвид ограничителните линии на застрояване и характерния наклон на терена, в имота е предвидена сграда с основна ориентация на югоизток, която е с 1 вход към апартаментите. Входът на сградата е от северозапад откъм обслужващата улица като до него е осигурен достъп по алеи, отговарящи на изискванията за универсален дизайн. Непосредствено към северната улична регулационна линия са предвидени 16 бр. открити паркоместа, което отговаря на изискванията на Наредба РД-02-20-2 , т.1(а) от Прил. №5. В сутерена на сградата са осигурени 7 велосипедни места Клас 1, както и индивидуални складове извън рамките на апартаментите.
Срокове и начини на плащане
Разрешение за строеж
10% от стойността
Начало на строителство
20% от стойността
Достигане на кота +0.00
20% от стойността
АКТ 14
30% от стойността
АКТ 15
15% от стойността
АКТ 16
5% от стойността
1 - Апартамент - Тристаен
3 - Апартамент - Тристаен
7 - Апартамент - Тристаен
9 - Апартамент - Двустаен
10 - Апартамент - Тристаен
1 - Паркомясто - Открито
2 - Паркомясто - Открито
3 - Паркомясто - Открито
4 - Паркомясто - Открито
5 - Паркомясто - Открито
6 - Паркомясто - Открито
7 - Паркомясто - Открито
8 - Паркомясто - Открито
9 - Паркомясто - Открито
10 - Паркомясто - Открито
11 - Паркомясто - Открито
12 - Паркомясто - Открито
13 - Паркомясто - Открито
14 - Паркомясто - Открито
15 - Паркомясто - Открито
16 - Паркомясто - Открито
17 - Паркомясто - Открито
18 - Паркомясто - Открито
Озеленяване
В южната част на имота ще бъде изградена озеленена част – градина за общо ползване от живущите. Пространството е предвидено като приятно и спокойно място за отдих, разходка и ежедневен комфорт, допринасящо за по-добрата жизнена среда в сградата. Озеленяването ще допълва цялостната концепция на имота и ще създава усещане за повече простор, уют и връзка с външната среда.
Контакти
Последни новини
Как да изберем идеалния климатик за новия си апартамент
Изборът на идеалния климатик за новия ви апартамент може да бъде предизвикателство, особено когато се стремите към максимален комфорт и енергийна ефективност. В тази статия ще разгледаме различни фактори, които трябва да вземете предвид при избора на климатик,...
22 октомври 2024
Сграда „Треспа“ – Съчетание на Стандарт и Иновации
В сърцето на града се намира новият жилищен комплекс "Треспа", който представлява съвременен архитектурен акцент, хармониращ с денивелацията на терена и предоставящ уникални панорамни гледки към морето, града и природата. Основни Характеристики: Комплексът е разпределен на 6 етажа,...
11 август 2023
Бутикова Жилищна Сграда в Ж.К. „Бриз” с Изглед към Морската Градина
В сърцето на ж.к. „Бриз”, една от най-престижните локации във Варна, се разполага нова бутикова жилищна сграда. Намирайки се в непосредствена близост до морската градина, тя предлага луксозно живеене с несравнима морска панорама. Ключови Характеристики: Разполага се на...
11 август 2023
